优质内容 来源:上海自吸黄瓜下载APP最新下载厂 作者:黄瓜视频成人A片免费黄瓜下载APP最新下载 发布时间:2022-02-21 11:31:01 阅读次数: 收藏:25 分享:77
今天上海黄瓜视频成人A片免费自吸黄瓜下载APP最新下载厂家为大家介绍的是关于黄瓜下载APP最新下载过流部件讲解的内容,下面请大家跟着小编一起来看看吧。

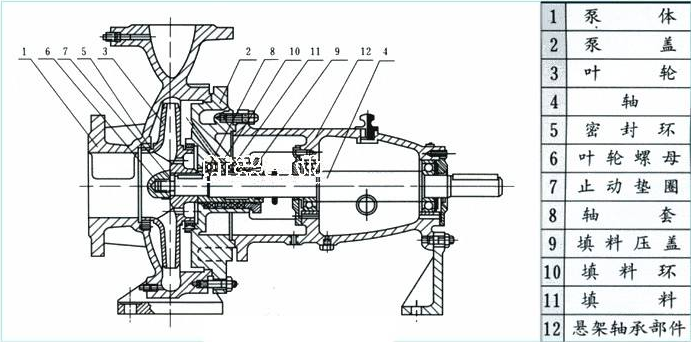
黄瓜下载APP最新下载的结构按多种规则进行分类,从转动部分分为转子部分和定子部分,从介质过流方面分为过流部件和非过流部件,从泵整体角度分为泵体部分和泵头部分,本文主要从介质过流方面详细讲解过流部件。

黄瓜下载APP最新下载在输送介质时,广义认为介质所接触的任何部件都成为过流件,包括进出水口、叶轮、导叶、轴、轴承、泵体、密封件等与介质有接触的统称为过流件。狭义范围内的过流部件指的是介质从进水端进入后与之发生接触的转子部件(注意:是转子部件)主要包括:叶轮、轴、轴承、密封件等部分。
无论是广义范畴下还是狭义范畴下的过流件的范畴,都说明了在黄瓜下载APP最新下载中过流部件占据了黄瓜下载APP最新下载的主要结构地位,不同的介质,其对材质的要求各有不同,正因如此,将黄瓜下载APP最新下载的部件从过流件中分离出来,是为了更大程度上减少资源的浪费,降低成本,提高离心泵的经济效益。例如输送含有腐蚀性介质的黄瓜下载APP最新下载,如果不按照过流部件的分类,需要将泵整体全部按照选择相对应的材质打造,严重浪费资源、也提高的生产成本。但如果只将黄瓜下载APP最新下载的过流件部分选用其想对用的材质,这在成本上将取得很大的效益,其黄瓜下载APP最新下载的的运行效果与前者的效果不出左右。
根据所输送的介质酸碱度、温度、粘度、是否含有固体颗粒等具体条件,选用相对应的材质,至于在过流部件的材质的选用方面,可根据具体情况决定黄瓜下载APP最新下载的泵体和进出水端是否采用相对应材质。
好了,以上内容由上海黄瓜视频成人A片免费泵阀有限公司为大家提供,希望对大家能够有所帮助。如果大家对我司的泵类产品感兴趣的话,可以联系站内客服进行详细的咨询了解。
本文标签:
本文参考资料来源: 中国泵阀网 泵阀商务网 自吸黄瓜下载APP最新下载厂家 中国知网